One of the greatest features about many tiny homes is that they're mobile. Instead of getting a hotel room or renting out a vacation house, you can conveniently bring your home and family with you to where ever you travel. We recently interviewed Randy Woodman from Escape Traveler Tiny Homes about what people love about tiny homes, what independent builders should look out for, and what sets his models apart from the rest.
Here's what he said:

What are you known for?
We started building small homes and Park Models over 20 years ago. Over two years ago we felt that we could bring something new to the tiny house movement. We design and build high-quality beautiful Tiny Homes that are RVIA [Recreational Vehicle Industry Association] certified.
What are the models of tiny homes you offer and what are the prices?

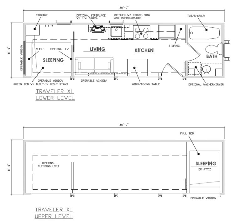
What is the most popular model, and why do you think people love it so much?
The Traveler XL (pictured above) is the most popular with the Vista a close second. I think the reason people love the Traveler XL is because of the windows and excellent design. Full-size kitchens and main floor queen size bedrooms and full-size bathrooms.
What's the inspiration behind the "Traveler XL" design?
There is a direct line from Frank Lloyd Wright to the architect that helps with our designs. Very functional and beautiful.

A lot of people are building their own tiny houses themselves. As professionals, what would you recommend for them?
Really study design with an eye towards functionality. Make it simple and clean. Don't get caught up in a lot of moving parts that will break and you will need to fix. Be aware it will take twice as long and cost twice as much as you think. Most importantly be safe and build a safe Tiny Home. As a company, we are very concerned that an unsafe Tiny Home might harm someone and damage the entire movement.
Have you ever thought of downsizing and living in a tiny house?
I have lived in Tiny Houses in the past. Very easy to clean also very easy to mess up.
Name one secret about tiny homes that most would find surprising.